• マイページ
  • 小説を探す
  • ネクスト
  • 書籍化作品
KADOKAWA Group
  • ログイン
  • 新規登録(無料)

流々(るる)

  • @ballgag
  • 2017年11月15日に登録
  • ミステリー
  • 現代ドラマ
ruru_kakuyomu
    • ホーム
    • 小説129
    • コレクション11
    • 近況ノート182
    • おすすめレビュー100
    • 小説のフォロー98
    • ユーザーのフォロー29
2022年1月12日 23:33

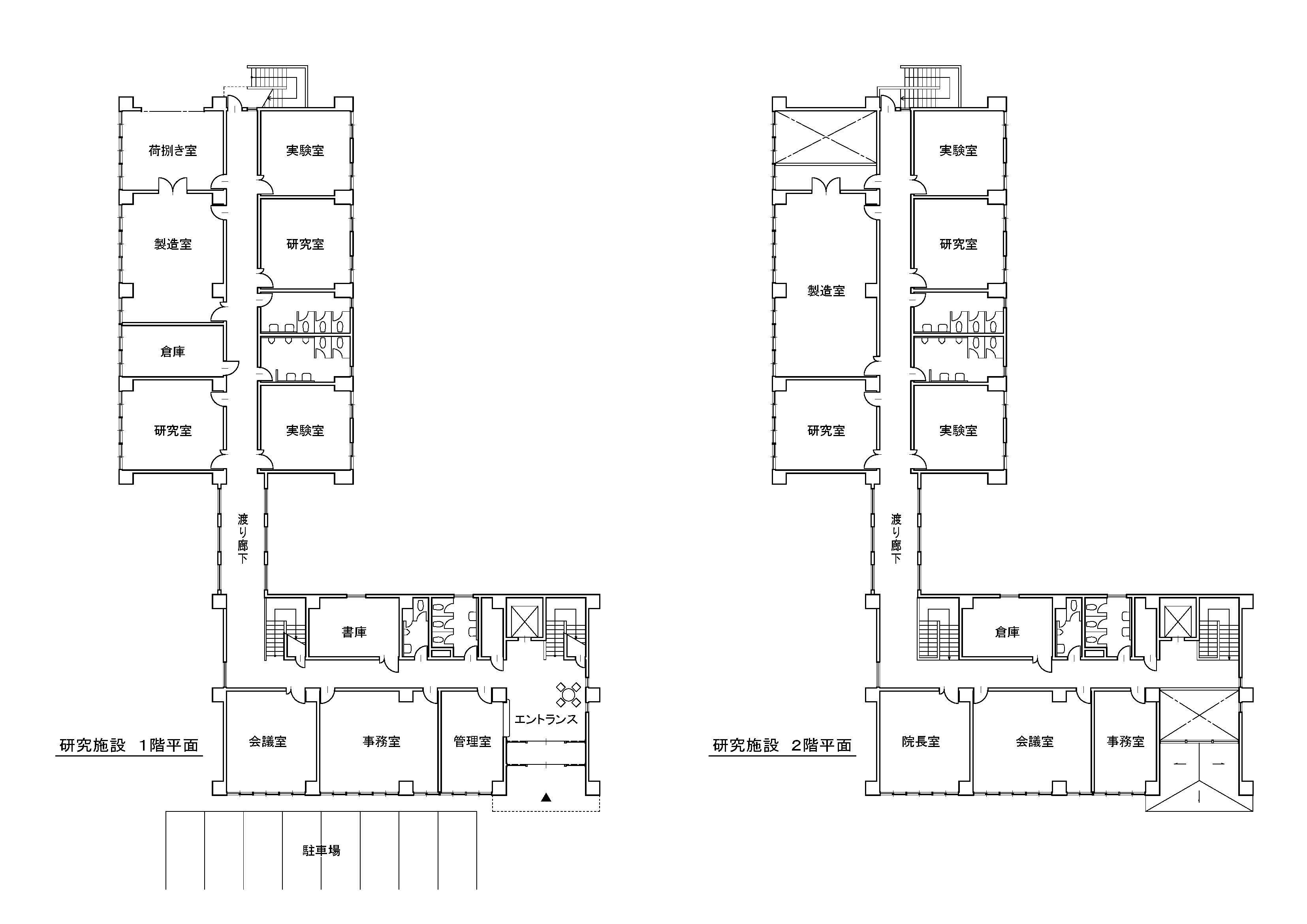
「さんざめく左手 ― よろず屋・月翔 散冴 ―」研究施設の平面図はこちら

ネタバレになるので詳細は伏せますが、散冴たちが入手した研究施設の平面図がこちらです。

https://kakuyomu.jp/works/1177354054890970148
流々(るる)
  • X
  • Facebook
  • はてなブックマーク

コメント

コメントの投稿にはユーザー登録(無料)が必要です。もしくは、ログイン
投稿する
「交換殺人って難しい」改稿のため、非公開としました。
この楽譜に込められた思いを、あなたは紐解くことができるか⁉

最近の記事

  • 何だか虚しい。

    • 2022年5月17日
  • 「交換殺人って難しい」一部の改稿のみで全話再公開しました。

    • 2022年4月11日
  • KAC2022に「首折り男の狂詩曲(ラプソディー)」で参加します!

    • 2022年3月6日
  • 「交換殺人って難しい」順次、再公開。

    • 2022年2月26日
  • 作品裏話1

    • サポーター限定
    • 2022年2月19日
  • 「交換殺人って難しい」改稿のため、非公開としました。

    • 2022年1月15日
  • 「さんざめく左手 ― よろず屋・月翔 散冴 ―」研究施設の平面図はこちら

    • 2022年1月12日